






Casa M45 Construcción Steel Frame
Tipología que comienza con un dormitorio y a posterior se amplia en dos etapas sucesivas
Costo Primera etapa $ 49.500.000 mas iva (consultar alcances y características)
Fachada Tipologia M45
Vista de fachada (no incluye galería y asador)
Tipo de equipamiento cocina que incluye la tipología M45. (no incluye artefactos, )
Equipamiento fijo


Casa DF37 Construcción Steel Frame
Residencia cuenta con un dormitorio, sanitario completo, kitchenette y comedor




Incluye fundaciones, cámara inspección, cámara séptica, sangría y movimiento de suelos.
Vista de fachada (no incluye galería y asador)
Tipología doble frente residencia de verano
Costo Primera etapa $ 40.000.000 mas iva (consultar alcances y características)
Ofertas Casa M-45m2 Construcción Steel Frame
Ofertas Casa Verano DF-37m2 Construcción Steel Frame
Te presentamos algunas ideas Construcción Steel Frame


Tipología Cabaña de Fin Semana Py-1
Supeficie cubierta 38.00m2


Tipología Cabaña de Fin Semana Py-2
Supeficie cubierta 53.00m2


Tipología Cabaña de Fin Semana Py-3
Supeficie cubierta 57.00m2

Ofertas DUplex Ec-115 Construcción PanelCret
Propuesta diseño duplex en lote de 360m2 ubicacion , proponemos dos unidades de 115.00m2 Cubierta
Costo $ 112.700.000 mas iva (Consultar Alcances y Caracteristicas )


Sistema PanelCret
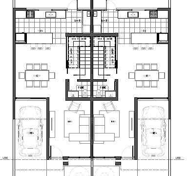
Planta baja tipología Duplex


Sistema PanelCret
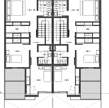
Planta Alta
tipología Duplex




Fachada Duplex
Frente con fachada verde
Ofertas Duplex Pi-102 Construcción PanelCret
Propuesta diseño duplex en lote de 360m2 ubicacion , proponemos dos unidades de 102.00m2 Cubierta
Costo $ 73.600.000 mas iva (Consultar Alcances y Caracteristicas )








Fachada
Duplex
Fachada Duplex
Axonometrica vista Interior y Terraza
Planta alta: Terraza accesible con Pergola
Planta Baja:
Dos Dormitorios
c/Patio Ingles

Arquitectura eficiente -
Ofrecemos soluciones de construcción inovadoras y eficaces.
Servicios
Desarrollo
+3516849621
© 2025. All rights reserved.
